2025.11.26
特集/愛すべき“無駄”愛おしい“家” 【3】
自然と共生する“丘そのもの”に建つ家とは?
女性に対してついロジックで結論を導き出そうとするのが男性脳の性。むしろ、何気ない会話や意味もなく一緒に過ごす沈黙といった“無駄"こそが関係を豊かにしてくれるものです。それは“家”においても同じ。効率を求めない“無駄”にこそ、その先にある快楽があるのかと。今回は、そんな愛すべき“無駄”がある愛おしい“家”「森を育む丘の家」をご紹介。
- CREDIT :
写真/川田有二 スタイリング/坂井辰翁 ヘアメイク/伊藤歌苗 文/清水香里、植本絵美 編集/市村広平、星野真琴(ともにLEON) 協力/iStock、アフロ
むしろ、気持ちに寄り添う何気ない会話や、意味もなく一緒に過ごす沈黙といった"無駄"こそが、ふたりの関係、そして人生を豊かにしてくれるのです。
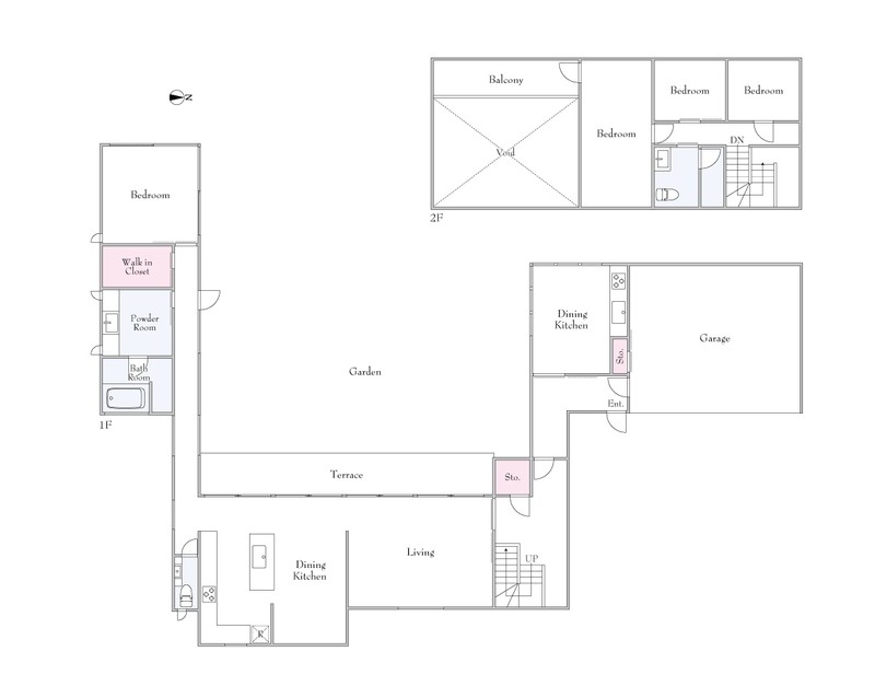
それは、“家”においても同じ。1階を空けたピロティ、遠回りを楽しむ回廊、地面に寄り添う平屋──。こうした“無駄”にこそ生まれる“間”や“余白”は、効率性が支配する現代社会に対するカウンター的な“贅”の象徴といえましょう。
合理性を裏切った先にある、大人の快楽。そんな愛すべき“無駄”の境地を愛でようではありませんか。
■ 愛すべき無駄 その3
遠回りを味わう回廊
そんな豊かさを建築に体現するならばあえて道をめぐらせ、歩く時間そのものに意味をもたらす「回廊」がきっと解なのでしょう。
【HOUSE-03】 森を育む丘の家
おウチの隅から隅までめぐる喜びを与えてくれる庭を囲む回廊とスロープ
庭から芝生のスロープが2階へと続き屋根も芝生を敷いた、内と外が有機的に連続する丘のような建築です。
自然と共生する計らいに豊かさの本質を見いだして

将来的には木々が育ち、建物自体が森の一部となるよう構想されているのだとか。穏やかな時間の流れのなかで、ふたりの距離も自然と溶け合って。
開放したり閉じたりできる回廊

クライアントは趣味である家具づくりなどを楽しんでおり、「創作の庭」と呼んでいるそう。季節や時間によって庭とのつながり方を自由に変えながら、住まいの余白として多目的に楽しめる場所です。
どこにいても庭を堪能できる暮らし




DESIGNED by OKDO
有名設計事務所で美術館や商業施設、オフィスなど大規模建築の経験を積んできた、ふたりの建築家が主宰する設計事務所。機能的でありながら豊かで洗練されたデザインを得意としています。固定観念を超え、社会や建築を使う人に本質的に必要とされる空間の提案を理念に掲げています。
HP/https://o-kdo.com
こちらの物件は購入可能です!
大工アーティストが提案する本物の素材を使ったベルギー民家




「BELGIAN PRIVATE HOME IN KARUIZAWA」
[価格] 5億5000万円
住所/長野県北佐久郡軽井沢町大字発地
[間取り] 4LDK [面積] 建物面積269.29㎡ 土地面積1440.35㎡
[売主]野村屋ホールディングス
[不動産管理会社] リスト サザビーズ インターナショナル リアルティ
TEL/0800-800-7065
HP/https://list-sir.jp
※掲載商品はすべて税込み価格です
■ お問い合わせ
コロネット 03-5216-6521
ゼニス 03-3575-5861
トヨダトレーディング プレスルーム 03-5350-5567
バインド ピーアール 03-6416-0441














